BMW Pavillon, IAA 2001 Frankfurt Hüllendurchstöße, Außentreppen

Büro für Messeplanung, München
     

 


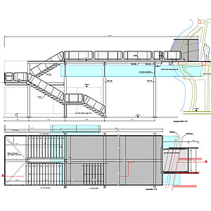
Automobilsalon Genf 2001, BMW Group Straßenkonstruktion, Standbau
Büro für Messeplanung, München